Opis projektu
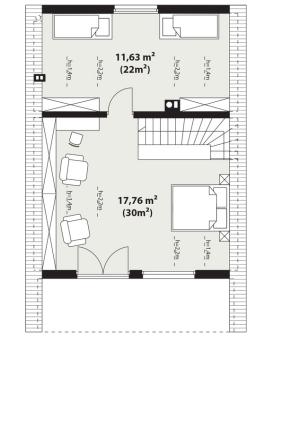
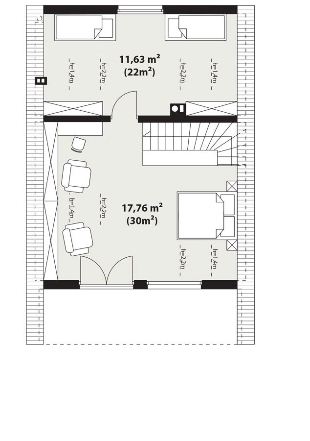
Erna 2 drewniana do niewielki dom jednorodzinny lub letniskowy. Posiada trzy sypialnie oraz otwartą część dzienną. Dzięki powierzchni zabudowy 69,5 m2, może być budowany na zgłoszenie. Jest to "nowoczesna stodoła" z przeszkleniami w ścianie szczytowej. Wejście do domu jest przez taras co pozwala sytuować dom na działkach z wejściem od południa. Standardowo dom wyposażony jest w pompę ciepła oraz kominek.
Technologia
Dach: dachówka lub blachodachówka
Elewacje: szalówka
Strop: belki drewniane
Ściany wewnętrzne: szkielet drewniany
Ściany zewnętrzne: szkielet drewniany
Ogrzewanie: kocioł gazowy lub kocioł na paliwo stałe
Pliki do pobrania
Autor projektu: Archetyp
Specyfikacja projektu
Dom
| Powierzchnia użytkowaDla domów parterowych: Suma powierzchni użytkowych wszystkich pomieszczeń bez garażu. Dla domów z poddaszem (dach spadzisty): Suma powierzchni użytkowych wszystkich pomieszczeń bez garażu i strychu. Na poddaszu, pod skosami dachu powierzchnię użytkową liczono wg zasady: - powyżej 2,2m wysokości pomieszczenia powierzchnia liczona w 100%, - pomiędzy 1,4m a 2,2m w 50%, - poniżej 1,4m powierzchnia nie jest brana pod uwagę. | 85.68 m² |
|---|---|
| Powierzchnia zabudowyPowierzchnia terenu, zajęta przez budynek w stanie wykończonym, bez tarasów, schodów zewnętrznych i podjazdów (PN-ISO 9836: 1997) | 69.55 m² |
| KubaturaObjętość budynku, liczona zgodnie z normą PN-ISO-9836:1997, czyli wraz z przegrodami zewnętrznymi i wewnętrznymi (ścianami, stropem, dachem i podmurówką). | 400 m³ |
| Wysokość kalenicyMaksymalna wysokość budynku mierzona od poziomu terenu przy wejściu do najwyżej położonego punktu dachu. | 7.15 m |
| Wysokość parteru | 2.61 m |
| Wysokość piętra | 2.90 m |
| Wysokość ścianki | 0.55 m |
Pomieszczenia
| Ilość sypialni (bez salonu) | 3 |
|---|---|
| Ilość łazienek (w tym toalet) | 1 |
Dach
| Powierzchnia dachu | 103.3 m² |
|---|---|
| Kąt nachylenia dachu | 38 ° |
Działka
| Minimalna długość działki | 20 m |
|---|---|
| Minimalna szerokość działki | 15.4 m |
| Minimalna powierzchnia działki | 308.00 m² |















5927
4373
4079
3653
2377
2278



