Opis usytuowania domu Miko na działce
Dom Miko to nowoczesny dom jednorodzinny z poddaszem użytkowym. Projekt doskonale nadaje się na małe działki w zwartej zabudowie ponieważ, minimalna powierzchnia działki to tylko 295,69 m2, co daje szerokość działki – 14,25 m a długość działki – 20,75m. Jeżeli jednak gabaryty działki nam na to pozwalają można obok domu Miko dobudować wiatę na samochód osobowy, tak jak jest to przedstawione na wizualizacjach. Oczywiście przed kupnem projektu domu Miko należy sprawdzić czy projekt jest zgodny z miejscowym planem zagospodarowania przestrzennego lub z decyzją zabudowy na daną działkę. Przed kupnem projektu zaleca się sprawdzić nieprzekraczalne linie zabudowy na miejscowym planie lub decyzji, ponieważ mogą one wpłynąć na minimalne wymiary działki.
Równie istotne jest usytuowanie bryły domu Miko na działce pod względem stron świata. Najbardziej komfortowe jest ustawienie części dziennej z tarasem od strony południowej, południowo – wschodniej lub południowo – zachodniej, a wejście od strony północnej.
Opis bryły domu Miko
Zaplanowana w ciekawy sposób bryła budynku sprawia że, Miko przyciąga uwagę osób lubiących nowoczesną architekturę. Dom został zaprojektowany na planie prostokąta, a powierzchnia zabudowy to 93 m2. Projekt wyróżnia się nietuzinkowymi elewacjami. Elewacje wentylowane na ruszcie są pokryte nowoczesnymi materiałami – grafitową blachą, która pokrywa również dach oraz szalówką lub płytą HPL w naturalnym odcieniu drewna. Całość dopełniają duże przeszklenia w grafitowych ramach. Wejście do domu osłania nadwieszony daszek. Od strony ogrodu znajduje się spory, po części zadaszony taras. Dom Miko posiada dwuspadowy dach o kącie nachylenia 35 stopni.
Dom Miko został zaprojektowany w technologii murowanej. Ściany zewnętrzne dwuwarstwowe, pustak ceramiczny, docieplenie wełną mineralną. Ściany wewnętrzne murowane.
Dom Miko – układ funkcjonalny
Rzut parteru
Powierzchnia użytkowa domu Miko to 117, 8 m2. Pomimo niewielkiego metrażu wnętrz zostały zaprojektowane tak, aby zapewnić komfort 4-6 osobowej rodzinie. W salonie znajduje się obszerny aneks kuchenny, obok którego umieszczona jest spiżarnia. Dzięki olbrzymim przeszkleniom pokój dzienny otwiera się na ogród. Duże okna z wyjściem na taras sprawiają, że wnętrze domu jest niezwykle jasne. W kuchni znajduje się duża wyspa połączona ze stołem jadalnianym. Takie rzadko spotykane rozwiązanie sprawi, że wnętrze będzie miało bardzo nowoczesny charakter. Na rzucie parteru zaplanowany został dodatkowy pokój, który może służyć jako piąta sypialnia lub gabinet do pracy. Łazienka z umywalką i misą ustępową pomieści również sporych rozmiarów kabinę prysznicową. Na parterze znajduje się również kotłownia z piecem na paliwo stałe. Może ona pełnić dodatkową funkcję pomieszczenia gospodarczego. Z hallu dostępne są duże schody prowadzące na poddasze użytkowe.
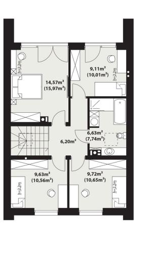
Rzut poddasza
W projekcie poddasza uwagę zwracają podwyższone ścianki kolankowe. Dzięki takiemu rozwiązaniu wszystkie pomieszczenia na piętrze są bardziej funkcjonalne, ponieważ skosy „nie zabierają” przestrzeni. Tak jak rzut parteru również i rzut poddasza został rozplanowany z dbałością o komfort mieszkańców. Na poddaszu znajdują się cztery sypialnie bardzo dobrze doświetlone dzięki dużym oknom. W sypialni głównej znalazło się miejsce na niewielki kącik do pracy lub toaletkę. W obszernej łazience umieszczona została wanna, kabina, umywalka i wc. Jest też miejsce na pralkę. Tak dużą przestrzeń łazienki można przeprojektować i rozdzielić ścianą wyodrębniając osobne pomieszczenie na pralnię. W łazience pozostanie wtedy miejsce na samą wannę lub kabinę prysznicową do wyboru.
Autor projektu zaprojektował dom Miko tak aby maksymalnie obniżyć koszt budowy zachowując wygodę i funkcjonalność wnętrza.
Projekty podobne do domu Miko
Projekt domu Miko dostępny jest też w wersji z garażem – projekt domu Miko 2
Technologia
Dach: dachówka lub blachodachówka
Elewacje: elewacja wentylowana na ruszcie
Strop: żelbetowy
Ściany wewnętrzne: murowane
Ściany zewnętrzne: dwuwarstwowe, pustak ceramiczny, docieplony wełną mineralną
Ogrzewanie: kocioł gazowy lub kocioł na paliwo stałe
Autor projektu: Archetyp
Specyfikacja projektu
Dom
| Powierzchnia użytkowaDla domów parterowych: Suma powierzchni użytkowych wszystkich pomieszczeń bez garażu. Dla domów z poddaszem (dach spadzisty): Suma powierzchni użytkowych wszystkich pomieszczeń bez garażu i strychu. Na poddaszu, pod skosami dachu powierzchnię użytkową liczono wg zasady: - powyżej 2,2m wysokości pomieszczenia powierzchnia liczona w 100%, - pomiędzy 1,4m a 2,2m w 50%, - poniżej 1,4m powierzchnia nie jest brana pod uwagę. | 117.8 m² |
|---|---|
| Powierzchnia zabudowyPowierzchnia terenu, zajęta przez budynek w stanie wykończonym, bez tarasów, schodów zewnętrznych i podjazdów (PN-ISO 9836: 1997) | 93 m² |
| KubaturaObjętość budynku, liczona zgodnie z normą PN-ISO-9836:1997, czyli wraz z przegrodami zewnętrznymi i wewnętrznymi (ścianami, stropem, dachem i podmurówką). | 648 m³ |
| Wysokość kalenicyMaksymalna wysokość budynku mierzona od poziomu terenu przy wejściu do najwyżej położonego punktu dachu. | 8.35 m |
| Wysokość parteru | 2.78 m |
| Wysokość piętra | 3.95 m |
| Wysokość ścianki | 1.75 m |
Pomieszczenia
| Ilość sypialni (bez salonu) | 5 |
|---|---|
| Ilość łazienek (w tym toalet) | 2 |
Dach
| Powierzchnia dachu | 128.2 m² |
|---|---|
| Kąt nachylenia dachu | 35 ° |
Działka
| Minimalna długość działki | 20.75 m |
|---|---|
| Minimalna szerokość działki | 14.25 m |
| Minimalna powierzchnia działki | 295.69 m² |
















5924
4371
4078
3647
2376
2278



