Opis projektu
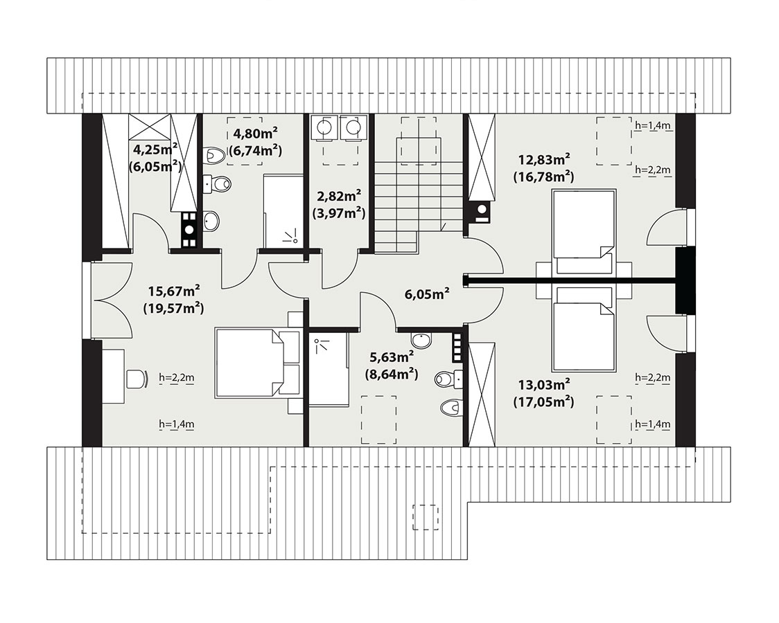
Fila to jednorodzinny budynek mieszkalny, parterowy z użytkowym poddaszem i jednostanowiskowym garażem. Bogaty i funkcjonalny układ pomieszczeń gwarantuje optymalny komfort wieloosobowej rodzinie. Ergonomicznie zaprojektowana i wyraźnie podzielona przestrzeń mieszkalna składa się ze strefy dziennej, nocnej i gospodarczej. Najbardziej reprezentacyjna część domu, to salon połączony z jadalnią, który otwiera się na duży taras oraz kuchnia ze spiżarnią i łazienką. Oprócz części dziennej przewidziano na parterze dodatkowy pokój, który można wykorzystać na gabinet lub kolejną sypialnię. Na poddaszu przewidziano 3 sypialnie, łazienkę oraz pralnię. Największa sypialnia posiada własną łazienkę oraz garderobą. Dużą kotłownię, na każdy rodzaj paliwa oraz jednostanowiskowy garaż zlokalizowano w części gospodarczej domu. Geometria rzutu, harmonia bryły oraz prostota nowoczesnych elewacji czynią ten dom nie tylko łatwym w eksploatacji i utrzymaniu ale również niezwykle eleganckim.
Technologia
Dach: dachówka lub blachodachówka
Elewacje: tynk
Strop: żelbetowy
Ściany wewnętrzne: murowane
Ściany zewnętrzne: dwuwarstwowe, pustak ceramiczny, docieplony styropianem
Ogrzewanie: kocioł gazowy lub kocioł na paliwo stałe
Dodatkowe informacje
Projekt dostępny także w wersji bez okapów: Filo
Pliki do pobrania
Autor projektu: Archetyp
Specyfikacja projektu
Dom
| Powierzchnia użytkowaDla domów parterowych: Suma powierzchni użytkowych wszystkich pomieszczeń bez garażu. Dla domów z poddaszem (dach spadzisty): Suma powierzchni użytkowych wszystkich pomieszczeń bez garażu i strychu. Na poddaszu, pod skosami dachu powierzchnię użytkową liczono wg zasady: - powyżej 2,2m wysokości pomieszczenia powierzchnia liczona w 100%, - pomiędzy 1,4m a 2,2m w 50%, - poniżej 1,4m powierzchnia nie jest brana pod uwagę. | 133.75 m² |
|---|---|
| Powierzchnia zabudowyPowierzchnia terenu, zajęta przez budynek w stanie wykończonym, bez tarasów, schodów zewnętrznych i podjazdów (PN-ISO 9836: 1997) | 123.41 m² |
| KubaturaObjętość budynku, liczona zgodnie z normą PN-ISO-9836:1997, czyli wraz z przegrodami zewnętrznymi i wewnętrznymi (ścianami, stropem, dachem i podmurówką). | 512 m³ |
| Wysokość kalenicyMaksymalna wysokość budynku mierzona od poziomu terenu przy wejściu do najwyżej położonego punktu dachu. | 8.35 m |
| Wysokość parteru | 2.77 m |
| Wysokość piętra | 2.55 m |
| Wysokość ścianki | 1.07 m |
Pomieszczenia
| Ilość sypialni (bez salonu) | 4 |
|---|---|
| Ilość łazienek (w tym toalet) | 3 |
Dach
| Powierzchnia dachu | 220 m² |
|---|---|
| Kąt nachylenia dachu | 40 ° |
Działka
| Minimalna długość działki | 18.95 m |
|---|---|
| Minimalna szerokość działki | 21.85 m |
| Minimalna powierzchnia działki | 414.06 m² |
Garaże
| Powierzchnia garażu | 18 m² |
|---|---|
| Ilość stanowisk w garażu | 1 |















5927
4373
4079
3653
2376
2278



