Opis projektu
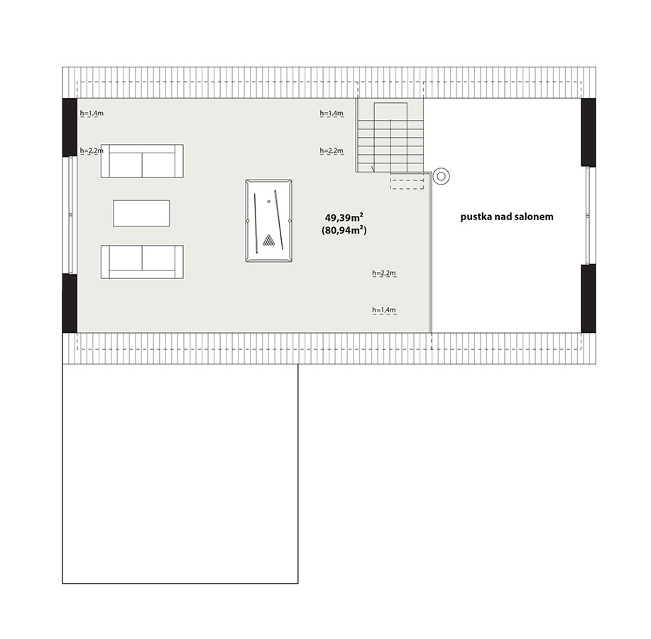
Projekt Hana 2 to dom w stylu nowoczesnej stodoły z garażem dwustanowiskowym. Bezokapowa bryła postawiona jest na planie litery "L". Duże przeszklenia i otwarta przestrzeń salonu nadają nowoczesnego charakteru. Dom spełnia program użytkowy w parterze (112,14 m2) a antresola (49,39 m2) jest dodatkową powierzchnią, niewliczoną do powierzchni użytkowej, która może być zaadaptowana jako mieszkalna lub zabudowana w formie strychu. Dom Hana 2 jest prosty i funkcjonalny a wnętrze pozwala na wiele sposobów aranżacji. Standardowo dom wyposażony jest w rekuperację oraz pompę ciepła.
Technologia
Dach: dachówka lub blachodachówka
Elewacje: elewacja wentylowana na ruszcie
Strop: żelbetowy
Ściany wewnętrzne: murowane
Ściany zewnętrzne: dwuwarstwowe, pustak ceramiczny, docieplony wełną mineralną
Ogrzewanie: kocioł gazowy lub kocioł na paliwo stałe
Dodatkowe informacje
Projekt dostępny także w wersji bez garażu: Hana.
Pliki do pobrania
Autor projektu: Archetyp
Specyfikacja projektu
Dom
| Powierzchnia użytkowaDla domów parterowych: Suma powierzchni użytkowych wszystkich pomieszczeń bez garażu. Dla domów z poddaszem (dach spadzisty): Suma powierzchni użytkowych wszystkich pomieszczeń bez garażu i strychu. Na poddaszu, pod skosami dachu powierzchnię użytkową liczono wg zasady: - powyżej 2,2m wysokości pomieszczenia powierzchnia liczona w 100%, - pomiędzy 1,4m a 2,2m w 50%, - poniżej 1,4m powierzchnia nie jest brana pod uwagę. | 112.14 m² |
|---|---|
| Powierzchnia zabudowyPowierzchnia terenu, zajęta przez budynek w stanie wykończonym, bez tarasów, schodów zewnętrznych i podjazdów (PN-ISO 9836: 1997) | 198.86 m² |
| KubaturaObjętość budynku, liczona zgodnie z normą PN-ISO-9836:1997, czyli wraz z przegrodami zewnętrznymi i wewnętrznymi (ścianami, stropem, dachem i podmurówką). | 1044 m³ |
| Wysokość kalenicyMaksymalna wysokość budynku mierzona od poziomu terenu przy wejściu do najwyżej położonego punktu dachu. | 7.42 m |
| Wysokość parteru | 2.66 m |
| Wysokość piętra | 3.40 m |
| Wysokość ścianki | 0.65 m |
Pomieszczenia
| Ilość sypialni (bez salonu) | 3 |
|---|---|
| Ilość łazienek (w tym toalet) | 2 |
Dach
| Powierzchnia dachu | 227 m² |
|---|---|
| Kąt nachylenia dachu | 35 ° |
Działka
| Minimalna długość działki | 24.75 m |
|---|---|
| Minimalna szerokość działki | 24.35 m |
| Minimalna powierzchnia działki | 602.66 m² |
Garaże
| Powierzchnia garażu | 37.50 m² |
|---|---|
| Ilość stanowisk w garażu | 2 |


















5927
4373
4079
3653
2377
2278



