Projekt domu Projekt nowoczesnej stodoły z antresolą – Hana 4
Usytuowanie na działce – projekt domu Hana 4
Dom Hana 4 to współczesny projekt w stylu stodoły, który wymaga nieco większych działek, ponieważ elewacja ma wymiary 15,85 m długości na 18 m szerokości (elewacja frontowa), a powierzchnia zabudowy wynosi 201,30 m². Wysokość konstrukcji do kalenicy wynosi 7,42 m. Minimalna powierzchnia działki dla takiego projektu to 621,25 m², a więc minimalna jej szerokość to 25 m, a długość 24,85 m. Ważne jest aby dostosować ustawienie projektu domu do kierunków stron świata, czyli taras rekreacyjny od południa. Przed zakupem koniecznie należy potwierdzić, czy projekt domu Hana 4 spełnia wymogi miejscowego planu zagospodarowania przestrzennego i przepisów dotyczących zabudowy na dana działkę, ponieważ w dokumentach wydanych przez właściwy urząd, mogły zostać ustalone nieprzekraczalne linie zabudowy, co może wymagać przekroczenia podanych wyżej wymiarów działki. Musimy pamiętać również o zachowaniu odpowiednich odległości od krawędzi działki i wszelkich pobliskich zabudowań.
Forma bryły domu Hana 4
Projekt Hana 4 to dom, reprezentujący nowoczesny styl stodoły, który jest obecnie bardzo modny ze względu na jego kompatybilność z różnymi typami terenów budowlanych. Ta konstrukcja w stylu stodoły z dużymi oknami jest wyjątkowa i przyciąga wzrok, niezależnie od tego, czy znajduje się w bardziej zurbanizowanym obszarze miejskim, czy w wiejskim otoczeniu. Konstrukcja budynku jest w formie litery „L”, z dachem dwuspadowym o kącie nachylenia połaci 35 stopni. Natomiast garaż na dwa samochody jest zadaszony dachem płaskim. Materiały użyte na ścianach oraz obszerne przeszklenia nadają domowi nowoczesnego charakteru. Wentylowane ściany wykonana są z okładzina drewnianej w kolorze grafitowym, w tym samym kolorze przyjęto okna i drzwi, poza bramą do garażu dwustanowiskowego, którą pozostawiono w kolorze naturalnego drewna, aby pasowała do ściany szczytowej dom . Projekt Hana 4 posiada dwa duże tarasy, jeden przylegający do pomieszczeń sypialnych i drugi dostępny z części salonowej. Dach może być wykonany z grafitowej blachodachówki lub dachówki ceramicznej. Spusty zostały ukryte w wentylowanej elewacji budynku. Przy zakupie projektu domu Hana 4 otrzymają Państwo kompletny plan (projekt techniczny) oraz opis zawierający poszczególne rozwiązania konstrukcyjne i materiałowe.
Budynek Hana 4 został zaprojektowany w technologii murowanej. Konstrukcję dwuwarstwowych ścian zewnętrznych stanowi pustak ceramiczny ocieplony wełną mineralną. Ściany wewnętrzne wykonane są z cegły, a strop z żelbetu.
Program użytkowy w parterze i na poddaszu (antresoli)
Rzut parteru
Parter domu Hana 4, w stylu nowoczesnej stodoły, o powierzchni użytkowej 112,06 m² (antresola nie została wliczona do powierzchni użytkowej) jest przystosowany do potrzeb czteroosobowej rodziny. Jest on podzielony na dwie odrębne strefy dzienną i sypialną. Strefa dzienna składa się z pokaźnego salonu z możliwością zainstalowania kominka lub paleniska. Jest on połączony z aneksem kuchennym, w którego pobliżu zaprojektowano spiżarnię. Między częścią dzienną a kuchnią jest miejsce na duży stół jadalny. Duże przeszklenia i otwarta przestrzeń salonu nadają domowi nowoczesny charakter. Również ściana przeszklenia w szczycie wpuszcza do części dziennej dużo naturalnego światła. Z salonu jest dostęp do tarasu, który może być wykorzystany jako dodatkowa jadalnia na świeżym powietrzu lub strefa wypoczynku. Dodatkowo do salonu przylega mała łazienka z umywalką, toaletą i dużą kabiną prysznicową. W tym projekcie domu Hana 4 na poddasze prowadzą wygodne schody, a pod nimi znajduje się malutkie pomieszczenie gospodarcze, które można wykorzystać do przechowywania takich przedmiotów jak odkurzacz czy mop. Z wiatrołapu mamy dostęp do kotłowni, która została przystosowana zarówno do kotła opalanego drewnem, jak i do kotła gazowego. Prowadzi ona do dużego garażu na dwa samochody, w którym jest wystarczająco dużo miejsca do przechowywania narzędzi samochodowych, opon czy rowerów. W części sypialnej znajdują się trzy pokoje. Główna sypialnia posiada miejsce na szafy i biurko do pracy. Dwa mniejsze pokoje mają bezpośrednie wyjście na taras rekreacyjny. Obok sypialni znajduje się łazienka z wanną, kabiną prysznicową i toaletą. Pod blatem z umywalką jest dodatkowe miejsce na pralkę.
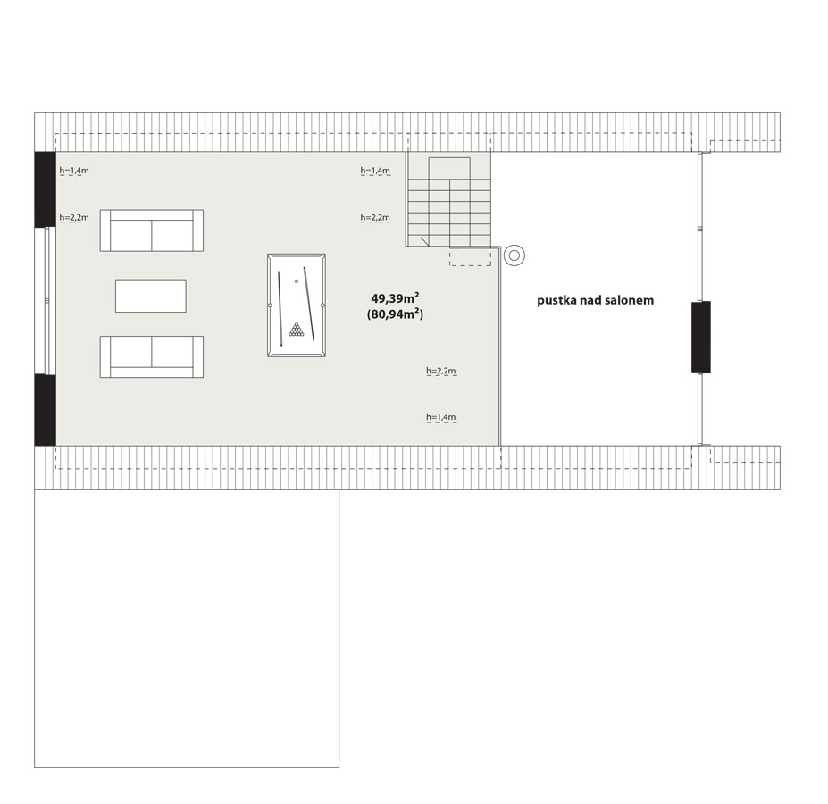
Rzut poddasza
Antresola na planie prostokąta stanowi przestrzeń uzupełniającą do programu użytkowego parteru. Antresolę można przekształcić w dodatkową przestrzeń mieszkalną, strefę wypoczynku, a nawet strych.
Dom Hana 4 jest wykonany w sposób prosty i użytkowy dzięki czemu oferuje wiele możliwości aranżacji wnętrza, zwłaszcza antresoli. W standardzie dom wyposażony jest w system rekuperacji oraz pompę ciepła.
Podobne projekty
Podobny projekt z garażem to projekt domu Hana 5 . Jest też dostępna wersja bez garażu – projekt domu Hana 6 .
Technologia
Dach: dachówka lub blachodachówka
Elewacje: elewacja wentylowana na ruszcie
Strop: żelbetowy
Ściany wewnętrzne: murowane
Ściany zewnętrzne: dwuwarstwowe, pustak ceramiczny, docieplony wełną mineralną
Ogrzewanie: kocioł gazowy lub kocioł na paliwo stałe
Pliki do pobrania
Autor projektu: Archetyp
Specyfikacja projektu
Dom
| Powierzchnia użytkowaDla domów parterowych: Suma powierzchni użytkowych wszystkich pomieszczeń bez garażu. Dla domów z poddaszem (dach spadzisty): Suma powierzchni użytkowych wszystkich pomieszczeń bez garażu i strychu. Na poddaszu, pod skosami dachu powierzchnię użytkową liczono wg zasady: - powyżej 2,2m wysokości pomieszczenia powierzchnia liczona w 100%, - pomiędzy 1,4m a 2,2m w 50%, - poniżej 1,4m powierzchnia nie jest brana pod uwagę. | 112.06 m² |
|---|---|
| Powierzchnia zabudowyPowierzchnia terenu, zajęta przez budynek w stanie wykończonym, bez tarasów, schodów zewnętrznych i podjazdów (PN-ISO 9836: 1997) | 201.30 m² |
| KubaturaObjętość budynku, liczona zgodnie z normą PN-ISO-9836:1997, czyli wraz z przegrodami zewnętrznymi i wewnętrznymi (ścianami, stropem, dachem i podmurówką). | 1082 m³ |
| Wysokość kalenicyMaksymalna wysokość budynku mierzona od poziomu terenu przy wejściu do najwyżej położonego punktu dachu. | 7.42 m |
| Wysokość parteru | 2.68 m |
| Wysokość piętra | 3.26 m |
| Wysokość ścianki | 0.63 m |
Pomieszczenia
| Ilość sypialni (bez salonu) | 3 |
|---|---|
| Ilość łazienek (w tym toalet) | 2 |
Dach
| Powierzchnia dachu | 243 m² |
|---|---|
| Kąt nachylenia dachu | 35 ° |
Działka
| Minimalna długość działki | 24.85 m |
|---|---|
| Minimalna szerokość działki | 25 m |
| Minimalna powierzchnia działki | 621.25 m² |
Garaże
| Powierzchnia garażu | 37.49 m² |
|---|---|
| Ilość stanowisk w garażu | 2 |


















5927
4373
4079
3653
2377
2278



