Projekt domu Projekt domu Helen 2 – Nowoczesna stodoła do 70m2 na zgłoszenie
Helen 2 – nowoczesna stodoła na miarę Twoich potrzeb (budowa do 70 m²)
Projekt domu Helen 2 to kwintesencja współczesnej architektury zamknięta w niezwykle ekonomicznej formie. Jeśli szukasz domu, który łączy minimalistyczny design z maksymalną funkcjonalnością, a jednocześnie mieści się w założeniach budowy na zgłoszenie (powierzchnia zabudowy do 70 m²), ten projekt jest stworzony dla Ciebie. Helen 2 to dowód na to, że niewielki metraż nie musi oznaczać kompromisów w kwestii komfortu.
Estetyka, która przyciąga wzrok
Budynek zachwyca surową, a zarazem ciepłą elewacją. Zastosowanie antracytowej blachy na rąbek, która płynnie przechodzi z dachu na fragmenty ścian, nadaje mu charakteru „nowoczesnej stodoły”. Kontrastująca ciemna płytka elewacyjna została tu przełamana panelami w kolorze naturalnego drewna, co ociepla wizerunek domu i sprawia, że idealnie wpisuje się on w każde otoczenie – od miejskiej działki po podmiejskie tereny zielone.
Parter: Centrum domowego życia i dodatkowa przestrzeń
Sercem domu jest otwarta strefa dzienna o powierzchni ponad 28 m², gdzie salon, jadalnia i kuchnia tworzą spójną całość. Kuchnia została zaprojektowana w ergonomicznym układzie z możliwością wydzielenia funkcjonalnego półwyspu, który idealnie sprawdzi się jako miejsce na szybką kawę. Dzięki ogromnym przeszkleniom wnętrze naturalnie łączy się z zewnętrznym, zadaszonym częściowo tarasem w kształcie litery L, który okala dom, oferując przestrzeń do relaksu bez względu na porę dnia. Co ważne, na parterze wygospodarowano dodatkowy pokój (9,02 m²) – idealny na gabinet do pracy zdalnej lub sypialnię gościnną.
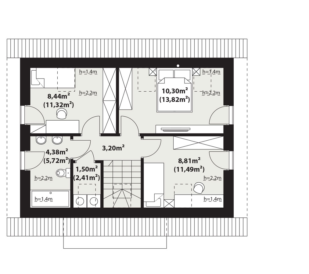
Poddasze: Prywatna strefa komfortu
Mimo niewielkiej bryły, poddasze mieści aż trzy ustawne sypialnie. Zastosowanie ścianki kolankowej o wysokości 140 cm pozwala na swobodną aranżację wnętrz i minimalizuje skosy. Dużym atutem, rzadko spotykanym w domach o tej powierzchni, jest oddzielna pralnia na piętrze, co znacząco ułatwia codzienne obowiązki i pozwala utrzymać porządek w głównej łazience.
Technologia i koszty
Helen 2 to dom tani w budowie i późniejszej eksploatacji. Tradycyjna technologia murowana z pustaka ceramicznego z dociepleniem styropianem zapewnia doskonałe parametry termiczne. Projekt przewiduje ogrzewanie pompą ciepła (lub opcjonalnie kotłem gazowym), co w połączeniu z prostą bryłą dachu dwuspadowego gwarantuje niskie rachunki.
Uwaga: Przed zakupem sprawdź zgodność projektu z Miejscowym Planem Zagospodarowania Przestrzennego lub Warunkami Zabudowy dla Twojej działki.
Podsumowanie atutów:
- Budowa bez pozwolenia: Powierzchnia zabudowy do 70 m² pozwala na realizację w uproszczonej procedurze na zgłoszenie.
- Maksymalne wykorzystanie przestrzeni: 4 pokoje (w tym gabinet na parterze) na powierzchni użytkowej poniżej 90 m².
- Nowoczesny design: Efektowne połączenie blachy na rąbek, drewna i dużych przeszkleń.
- Funkcjonalne detale: Osobna pralnia na poddaszu oraz duży, narożny taras w kształcie litery L.
- Niskie koszty utrzymania: Prosta bryła i nowoczesne systemy grzewcze (pompa ciepła).
Dom tak sprytnie zaplanowany, że Twoi goście będą szukać ukrytych metrów kwadratowych za każdym obrazem! 🕵️♂️✨
Technologia budowy domu Helen 2
Dach: dachówka lub blachodachówka
Elewacje: płytka elewacyjna, szalówka
Strop: żelbetowy
Ściany wewnętrzne: murowane
Ściany zewnętrzne: dwuwarstwowe, pustak ceramiczny, docieplony styropianem
Ogrzewanie: kocioł gazowy lub kocioł na paliwo stałe
Dodatkowe informacje
Projekt dostępny także w wersji murowanej bezokapowej: Helen oraz w wersji drewnianej Helen 2 drewniana
Pliki do pobrania
Autor projektu: Archetyp
Specyfikacja projektu
Dom
| Powierzchnia użytkowaDla domów parterowych: Suma powierzchni użytkowych wszystkich pomieszczeń bez garażu. Dla domów z poddaszem (dach spadzisty): Suma powierzchni użytkowych wszystkich pomieszczeń bez garażu i strychu. Na poddaszu, pod skosami dachu powierzchnię użytkową liczono wg zasady: - powyżej 2,2m wysokości pomieszczenia powierzchnia liczona w 100%, - pomiędzy 1,4m a 2,2m w 50%, - poniżej 1,4m powierzchnia nie jest brana pod uwagę. | 86.67 m² |
|---|---|
| Powierzchnia zabudowyPowierzchnia terenu, zajęta przez budynek w stanie wykończonym, bez tarasów, schodów zewnętrznych i podjazdów (PN-ISO 9836: 1997) | 69.96 m² |
| KubaturaObjętość budynku, liczona zgodnie z normą PN-ISO-9836:1997, czyli wraz z przegrodami zewnętrznymi i wewnętrznymi (ścianami, stropem, dachem i podmurówką). | 425 m³ |
| Wysokość kalenicyMaksymalna wysokość budynku mierzona od poziomu terenu przy wejściu do najwyżej położonego punktu dachu. | 7.60 m |
| Wysokość parteru | 2.60 m |
| Wysokość piętra | 2.60 m |
| Wysokość ścianki | 1.03 m |
Pomieszczenia
| Ilość sypialni (bez salonu) | 4 |
|---|---|
| Ilość łazienek (w tym toalet) | 2 |
Dach
| Powierzchnia dachu | 126 m² |
|---|---|
| Kąt nachylenia dachu | 40 ° |
Działka
| Minimalna długość działki | 16.25 m |
|---|---|
| Minimalna szerokość działki | 17.65 m |
| Minimalna powierzchnia działki | 286.81 m² |














5924
4371
4078
3647
2376
2278



