Opis projektu
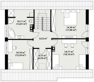
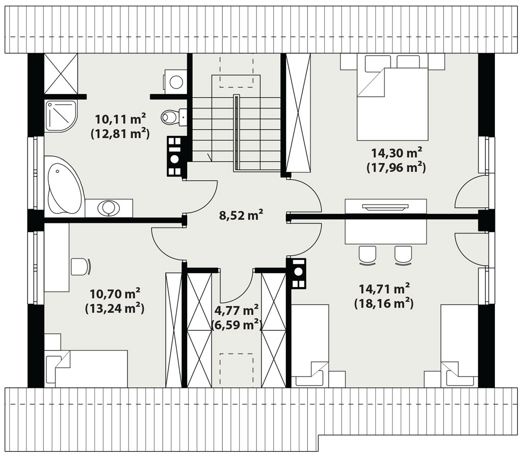
Wygodny dom jednorodzinny, parterowy, z poddaszem użytkowym, niepodpiwniczony. Posiada prostą bryłę o tradycyjnym kształcie i nowoczesnym charakterze elewacji. Zaprojektowany z troską o efektywnym wykorzystaniu powierzchni. Garderobę, dostępną z korytarza, można zaadaptować na pralnię. Kotłownia pozwala na zastosowanie kotła na dowolny rodzaj paliwa
Technologia
Dach: dachówka lub blachodachówka
Elewacje: tynk
Strop: żelbetowy
Ściany wewnętrzne: murowane
Ściany zewnętrzne: dwuwarstwowe, pustak ceramiczny, docieplony styropianem
Ogrzewanie: kocioł gazowy lub kocioł na paliwo stałe
Pliki do pobrania
Autor projektu: Archetyp
Specyfikacja projektu
Dom
| Powierzchnia użytkowaDla domów parterowych: Suma powierzchni użytkowych wszystkich pomieszczeń bez garażu. Dla domów z poddaszem (dach spadzisty): Suma powierzchni użytkowych wszystkich pomieszczeń bez garażu i strychu. Na poddaszu, pod skosami dachu powierzchnię użytkową liczono wg zasady: - powyżej 2,2m wysokości pomieszczenia powierzchnia liczona w 100%, - pomiędzy 1,4m a 2,2m w 50%, - poniżej 1,4m powierzchnia nie jest brana pod uwagę. | 121.65 m² |
|---|---|
| Powierzchnia zabudowyPowierzchnia terenu, zajęta przez budynek w stanie wykończonym, bez tarasów, schodów zewnętrznych i podjazdów (PN-ISO 9836: 1997) | 102.40 m² |
| KubaturaObjętość budynku, liczona zgodnie z normą PN-ISO-9836:1997, czyli wraz z przegrodami zewnętrznymi i wewnętrznymi (ścianami, stropem, dachem i podmurówką). | 580 m³ |
| Wysokość kalenicyMaksymalna wysokość budynku mierzona od poziomu terenu przy wejściu do najwyżej położonego punktu dachu. | 9 m |
| Wysokość parteru | 2.63 m |
| Wysokość piętra | 2.60 m |
| Wysokość ścianki | 1.03 m |
Pomieszczenia
| Ilość sypialni (bez salonu) | 3 |
|---|---|
| Ilość łazienek (w tym toalet) | 2 |
Dach
| Powierzchnia dachu | 181 m² |
|---|---|
| Kąt nachylenia dachu | 45 ° |
Działka
| Minimalna długość działki | 17.35 m |
|---|---|
| Minimalna szerokość działki | 19.35 m |
| Minimalna powierzchnia działki | 335.72 m² |
Garaże
| Powierzchnia garażu | 18.12 m² |
|---|---|
| Ilość stanowisk w garażu | 1 |













5924
4372
4078
3649
2376
2278



