Opis projektu
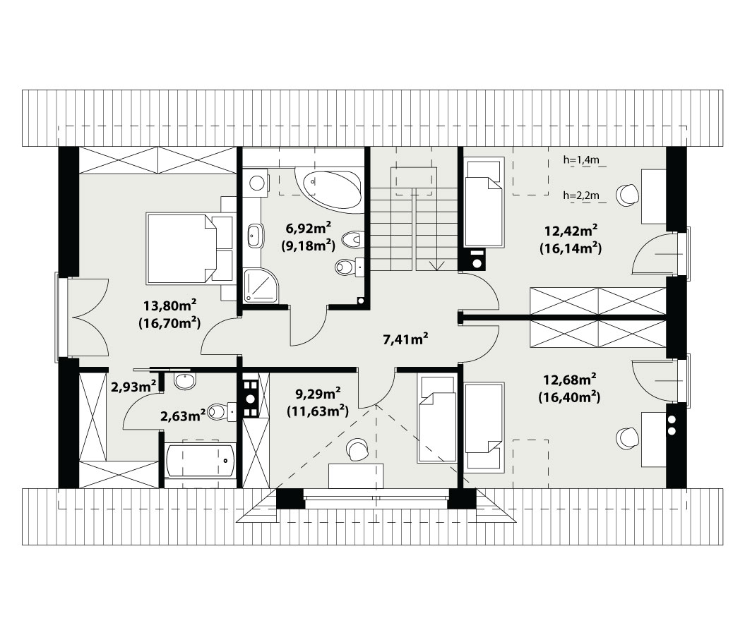
Prosty, ale zarazem interesujący dom o średnich gabarytach. Bardzo funkcjonalny układ pomieszczeń zapewnia optymalny komfort 5-osobowej rodzinie. Na parterze zaprojektowano kuchnię ze spiżarnią, salon z jadalnią, kotłownię, łazienkę oraz garaż. Atutem tego projektu jest dodatkowy pokój na parterze, który może pełnić rolę gabinetu. Na poddaszu przewidziano 4 sypialnie, w tym jedną z własną łazienką i garderobą oraz łazienkę. Elegancki styl tego budynku uzyskano poprzez połączenie klasycznej bryły domu jednorodzinnego z nowoczesnymi elewacjami i materiałami oraz z delikatnym detalem.
Technologia
Dach: dachówka lub blachodachówka
Elewacje: tynk, płytka elewacyjna, płyta hpl lub szalówka
Strop: żelbetowy
Ściany wewnętrzne: murowane
Ściany zewnętrzne: dwuwarstwowe, pustak ceramiczny, docieplony styropianem
Ogrzewanie: kocioł gazowy lub kocioł na paliwo stałe
Pliki do pobrania
Autor projektu: Archetyp
Specyfikacja projektu
Dom
| Powierzchnia użytkowaDla domów parterowych: Suma powierzchni użytkowych wszystkich pomieszczeń bez garażu. Dla domów z poddaszem (dach spadzisty): Suma powierzchni użytkowych wszystkich pomieszczeń bez garażu i strychu. Na poddaszu, pod skosami dachu powierzchnię użytkową liczono wg zasady: - powyżej 2,2m wysokości pomieszczenia powierzchnia liczona w 100%, - pomiędzy 1,4m a 2,2m w 50%, - poniżej 1,4m powierzchnia nie jest brana pod uwagę. | 129.98 m² |
|---|---|
| Powierzchnia zabudowyPowierzchnia terenu, zajęta przez budynek w stanie wykończonym, bez tarasów, schodów zewnętrznych i podjazdów (PN-ISO 9836: 1997) | 117.03 m² |
| KubaturaObjętość budynku, liczona zgodnie z normą PN-ISO-9836:1997, czyli wraz z przegrodami zewnętrznymi i wewnętrznymi (ścianami, stropem, dachem i podmurówką). | 690 m³ |
| Wysokość kalenicyMaksymalna wysokość budynku mierzona od poziomu terenu przy wejściu do najwyżej położonego punktu dachu. | 8.69 m |
| Wysokość parteru | 2.70 m |
| Wysokość piętra | 2.53 m |
| Wysokość ścianki | 0.95 m |
Pomieszczenia
| Ilość sypialni (bez salonu) | 5 |
|---|---|
| Ilość łazienek (w tym toalet) | 3 |
Dach
| Powierzchnia dachu | 220 m² |
|---|---|
| Kąt nachylenia dachu | 45 ° |
Działka
| Minimalna długość działki | 17.45 m |
|---|---|
| Minimalna szerokość działki | 21.85 m |
| Minimalna powierzchnia działki | 381.28 m² |
Garaże
| Powierzchnia garażu | 21.32 m² |
|---|---|
| Ilość stanowisk w garażu | 1 |














5927
4373
4079
3653
2376
2278



