Opis projektu
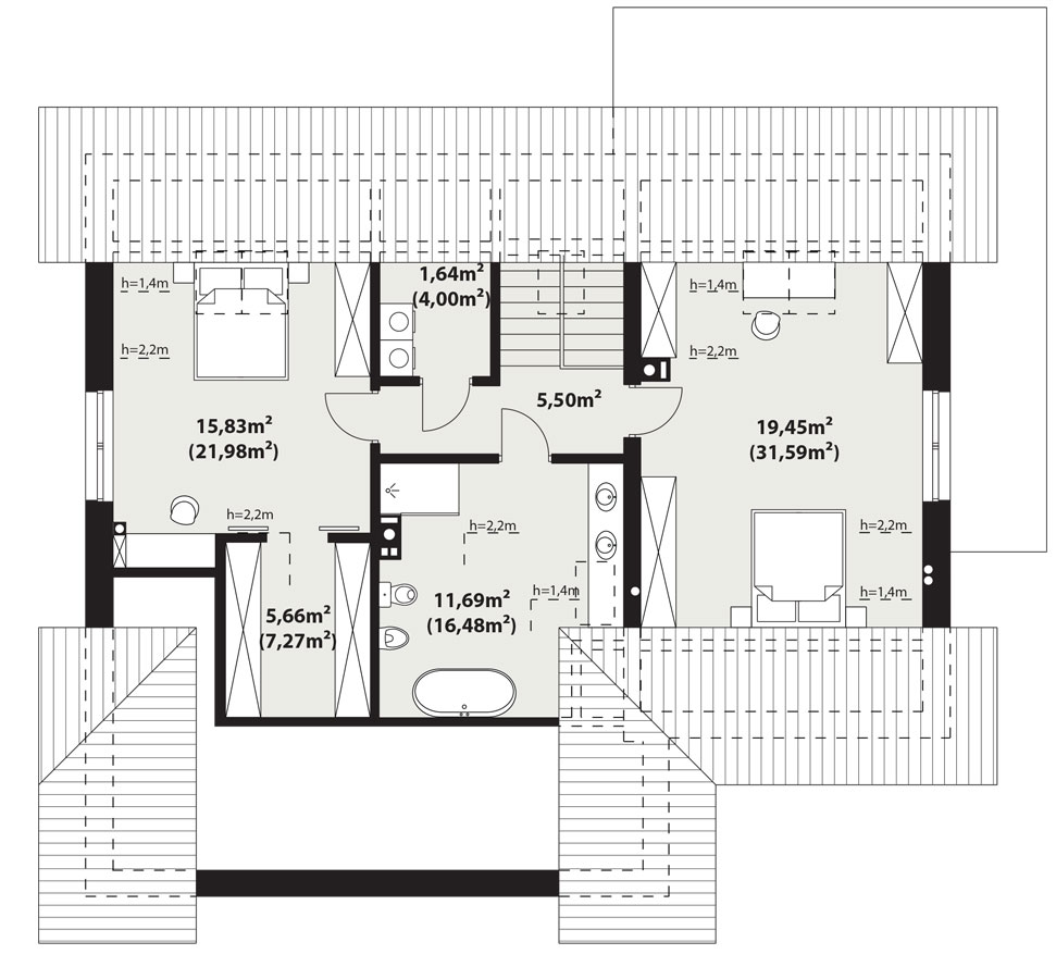
Niko 5 to projekt domu jednorodzinnego z poddaszem użytkowym. Plusem tego projektu są dwa pokoje w parterze: sypialnia i gabinet oraz dwie duże sypialnie na poddaszu. Sporo miejsca przewidziano na pomieszczenia pomocnicze jak pralnia, spiżarnia, garderoba. Wejście do domu jest przez praktyczny podcień chroniący przed deszczem i słońcem. Z samego wiatrołapu prowadzi wejście do dużej kotłowni na każdy rodzaj paliwa. O praktycznych walorach budynku świadczy również garaż o szerokości 1,5 miejsca postojowego, dzięki któremu domownicy mogą znaleźć dodatkową przestrzeń na przechowywanie niezbędnych sprzętów domowych czy ogrodniczych. Prosta i zwarta bryła budynku, przykryta dwuspadowym dachem, pozwala na łatwą i stosunkowo niedrogą budowę.
Technologia
Dach: dachówka lub blachodachówka
Elewacje: tynk, płytka elewacyjna
Strop: żelbetowy
Ściany wewnętrzne: murowane
Ściany zewnętrzne: dwuwarstwowe, pustak ceramiczny, docieplony styropianem
Ogrzewanie: kocioł gazowy lub kocioł na paliwo stałe
Pliki do pobrania
Autor projektu: Archetyp
Specyfikacja projektu
Dom
| Powierzchnia użytkowaDla domów parterowych: Suma powierzchni użytkowych wszystkich pomieszczeń bez garażu. Dla domów z poddaszem (dach spadzisty): Suma powierzchni użytkowych wszystkich pomieszczeń bez garażu i strychu. Na poddaszu, pod skosami dachu powierzchnię użytkową liczono wg zasady: - powyżej 2,2m wysokości pomieszczenia powierzchnia liczona w 100%, - pomiędzy 1,4m a 2,2m w 50%, - poniżej 1,4m powierzchnia nie jest brana pod uwagę. | 149.96 m² |
|---|---|
| Powierzchnia zabudowyPowierzchnia terenu, zajęta przez budynek w stanie wykończonym, bez tarasów, schodów zewnętrznych i podjazdów (PN-ISO 9836: 1997) | 173.62 m² |
| KubaturaObjętość budynku, liczona zgodnie z normą PN-ISO-9836:1997, czyli wraz z przegrodami zewnętrznymi i wewnętrznymi (ścianami, stropem, dachem i podmurówką). | 985 m³ |
| Wysokość kalenicyMaksymalna wysokość budynku mierzona od poziomu terenu przy wejściu do najwyżej położonego punktu dachu. | 7.25 m |
| Wysokość parteru | 2.77 m |
| Wysokość piętra | 2.55 m |
| Wysokość ścianki | 0.90 m |
Pomieszczenia
| Ilość sypialni (bez salonu) | 4 |
|---|---|
| Ilość łazienek (w tym toalet) | 3 |
Dach
| Powierzchnia dachu | 270 m² |
|---|---|
| Kąt nachylenia dachu | 35 ° |
Działka
| Minimalna długość działki | 21.65 m |
|---|---|
| Minimalna szerokość działki | 22.75 m |
| Minimalna powierzchnia działki | 492.54 m² |
Garaże
| Powierzchnia garażu | 31.14 m² |
|---|---|
| Ilość stanowisk w garażu | 1 |
















5924
4372
4078
3649
2376
2278



