Projekt domu Surażkowo 3 – Projekt domu w stylu podlaskim | 4 sypialnie
Surażkowo 3 – Tradycja Podlasia w nowoczesnym wydaniu
Projekt domu Surażkowo 3 to wyjątkowa propozycja dla miłośników sielskiego klimatu, którzy nie chcą rezygnować z komfortu nowoczesnego budownictwa. Ten nieduży dom z użytkowym poddaszem nawiązuje bezpośrednio do architektury tradycyjnych domów podlaskich, co czyni go idealnym wyborem zarówno na tereny wiejskie, jak i podmiejskie działki otoczone zielenią. Sercem zewnętrznej strefy relaksu jest tutaj uroczy, zadaszony ganek-weranda, który zaprasza do wejścia i stanowi idealne miejsce na poranną kawę bez względu na pogodę.
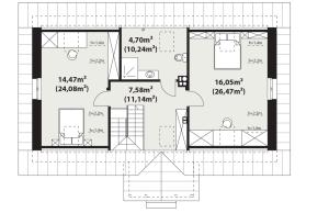
Wnętrze domu zaprojektowano z myślą o maksymalnej elastyczności i funkcjonalności. Parter to przestrzeń tętniąca życiem – znajdziemy tu otwartą strefę dzienną łączącą salon z jadalnią i kuchnią, gdzie centralne miejsce może zająć klimatyczny kominek. Ogromnym atutem kondygnacji parterowej są dwie dodatkowe sypialnie, które świetnie sprawdzą się jako pokoje dla seniorów, gabinet do pracy zdalnej czy pokój gościnny. Program parteru uzupełnia wygodna łazienka oraz pomieszczenie techniczne (kotłownia), które dzięki swoim wymiarom pozwala na elastyczność w doborze źródła ogrzewania.
Poddasze użytkowe to strefa prywatna domowników. Zaplanowano tu dwie ustawne sypialnie oraz drugą łazienkę, co zapewnia komfort 4-5 osobowej rodzinie. Co niezwykle istotne, wszystkie ściany wewnętrzne (zarówno na parterze, jak i na poddaszu) są ścianami działowymi. To unikalna cecha konstrukcyjna, która daje Inwestorowi niemal nieograniczone możliwości aranżacji przestrzeni i dostosowania układu pomieszczeń do indywidualnych potrzeb – od otwarcia przestrzeni po wydzielenie dodatkowych schowków czy garderób.
Od strony technicznej Surażkowo 3 to solidna konstrukcja murowana. Ściany zewnętrzne wznoszone są z pustaka ceramicznego i docieplone wełną mineralną, co w połączeniu z drewnianą elewacją (szalówką) gwarantuje doskonałe parametry cieplne i akustyczne. Drewniany strop nad parterem podkreśla rustykalny charakter wnętrza, a dwuspadowy dach pokryty dachówką lub blachą na rąbek dopełnia klasyczną bryłę. Dom jest standardowo wyposażony w nowoczesną pompę ciepła, co czyni go oszczędnym w eksploatacji.
To dom, który wygląda, jakby stał tu od zawsze, ale technologicznie wyprzedza sąsiadów – idealny, by na ganku czytać książki i udawać, że Wi-Fi nie istnieje (choć w środku działa doskonale)
Najważniejsze atuty projektu:
- Elastyczność aranżacji: Wszystkie ściany wewnętrzne są działowe, co pozwala na dowolną modyfikację układu pomieszczeń.
- Klimatyczny ganek: Zadaszona weranda wejściowa nawiązująca do stylu tradycyjnych domów wiejskich.
- Bogaty program funkcjonalny: Aż 4 sypialnie (2 na parterze, 2 na poddaszu) przy stosunkowo niedużej powierzchni zabudowy.
- Solidna i ciepła konstrukcja: Ściany dwuwarstwowe z pustaka ceramicznego i wełny mineralnej z estetyczną szalówką drewnianą.
- Energooszczędność: Projekt dostosowany do ogrzewania pompą ciepła i wyposażony w kominek.
Technologia budowy domu Surażkowo 3
Dach: dachówka, blachodachówka lub blacha na rąbek
Elewacje: szalówka
Strop: drewniany
Ściany wewnętrzne: murowane
Ściany zewnętrzne: dwuwarstwowe, pustak ceramiczny, docieplony wełną mineralną
Ogrzewanie: kocioł gazowy lub kocioł na paliwo stałe
Dodatkowe informacje
Projekt dostępny także we innych wersjach: Surażkowo, Surażkowo 2, Surażkowo 4
Pliki do pobrania
Autor projektu: Archetyp
Specyfikacja projektu
Dom
| Powierzchnia użytkowaDla domów parterowych: Suma powierzchni użytkowych wszystkich pomieszczeń bez garażu. Dla domów z poddaszem (dach spadzisty): Suma powierzchni użytkowych wszystkich pomieszczeń bez garażu i strychu. Na poddaszu, pod skosami dachu powierzchnię użytkową liczono wg zasady: - powyżej 2,2m wysokości pomieszczenia powierzchnia liczona w 100%, - pomiędzy 1,4m a 2,2m w 50%, - poniżej 1,4m powierzchnia nie jest brana pod uwagę. | 119.56 m² |
|---|---|
| Powierzchnia zabudowyPowierzchnia terenu, zajęta przez budynek w stanie wykończonym, bez tarasów, schodów zewnętrznych i podjazdów (PN-ISO 9836: 1997) | 106.13 m² |
| KubaturaObjętość budynku, liczona zgodnie z normą PN-ISO-9836:1997, czyli wraz z przegrodami zewnętrznymi i wewnętrznymi (ścianami, stropem, dachem i podmurówką). | 582 m³ |
| Wysokość kalenicyMaksymalna wysokość budynku mierzona od poziomu terenu przy wejściu do najwyżej położonego punktu dachu. | 7.5 m |
| Wysokość parteru | 2.92 m |
| Wysokość piętra | 3.06 m |
| Wysokość ścianki | 0.49 m |
Pomieszczenia
| Ilość sypialni (bez salonu) | 4 |
|---|---|
| Ilość łazienek (w tym toalet) | 2 |
Dach
| Powierzchnia dachu | 189.5 m² |
|---|---|
| Kąt nachylenia dachu | 40 ° |
Działka
| Minimalna długość działki | 16.95 m |
|---|---|
| Minimalna szerokość działki | 21.35 m |
| Minimalna powierzchnia działki | 361.88 m² |




























5927
4373
4079
3653
2376
2278



